Ransuillaan

Prijs : € 1847

Leidschendam

appartement


Ransuillaan Ga naar Huurwoningen-nl

voor € 1847

Bekijk alle informatie en beschikbaarheid bij Huurwoningen-nl.

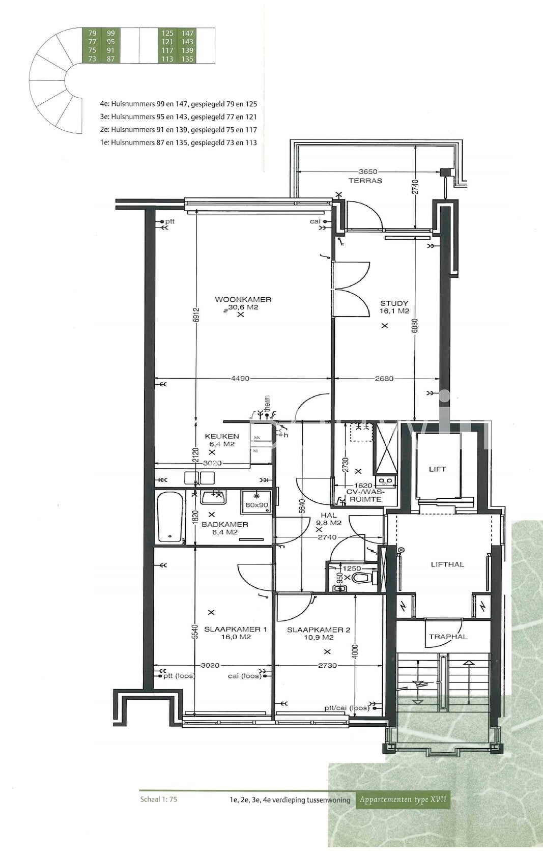
Dit ruime en comfortabele 3-kamerappartement van 110 m², gelegen aan de Ransuillaan in Leidschendam, biedt een ideale combinatie van wonen, winkelen en recreatie. Met twee slaapkamers, een ruim balkon...