Bilderdijkkade

Prijs : € 2350

Amsterdam

Appartement


Bilderdijkkade Ga naar Huurstunt-nl

voor € 2350

Bekijk alle informatie en beschikbaarheid bij Huurstunt-nl.

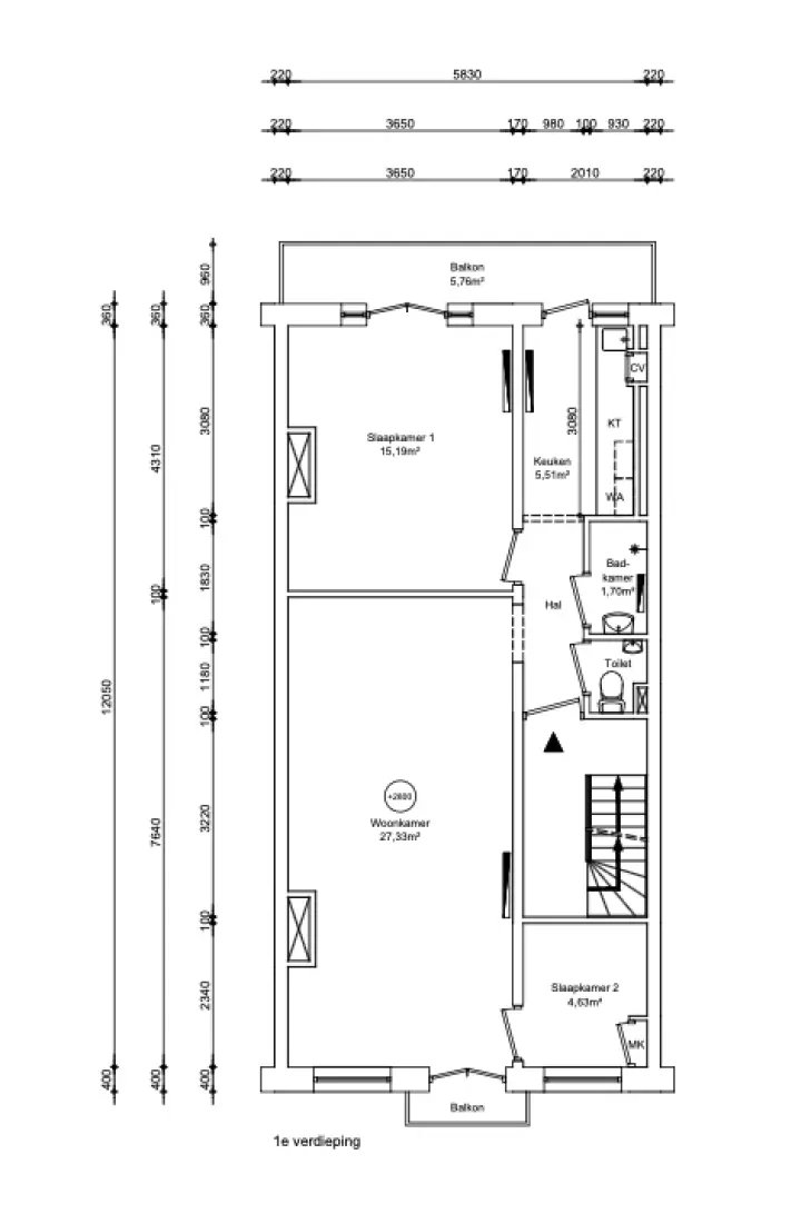
Een lichte, ongemeubileerde woning op een gewilde kade, waar rust, uitzicht en stadse dynamiek samenkomen. INDELING: Bij binnenkomst van de woning op de eerste verdieping betreed je de hal, die toegan...