Appartement Te Huur Plein 1971 58 In Nieuwegein Voor € 1.355

Prijs : € 1355

Nieuwegein

Onbekend


Appartement Te Huur Plein 1971 58 In Nieuwegein Voor € 1.355 Ga naar Huurportaal-nl

voor € 1355

Bekijk alle informatie en beschikbaarheid bij Huurportaal-nl.

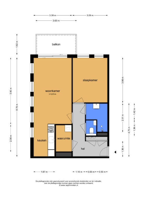
Beschrijving Plein 1971 - 58 in Nieuwegein READY, SET, ACTION! Klaar voor de volgende scène in jouw leven? Deze nieuwe woning naast City Plaza Nieuwegein komt per 8 mei 2026 beschikbaar! IVY APARTM...