Apartment For Rent In Overtoom 298-H 1054JC Amsterdam WG-Terrein Amsterdam

Prijs : € 3750

Amsterdam

Onbekend


Apartment For Rent In Overtoom 298-H 1054JC Amsterdam WG-Terrein Amsterdam Ga naar Huurportaal-nl

voor € 3750

Bekijk alle informatie en beschikbaarheid bij Huurportaal-nl.

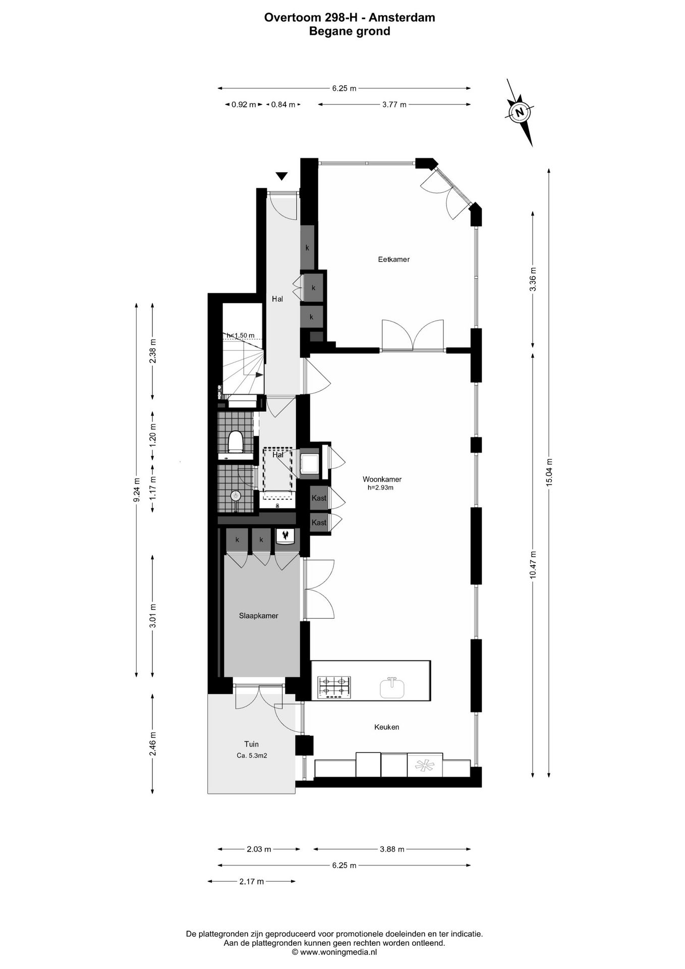
JA! Prachtig afgewerkte en volledig gemeubileerde dubbele benedenwoning met tuin, ontworpen door architect Marco van Veldhuizen. De woning is multifunctioneel vanwege de bestemming gemengd-1, hierdoor...