Apartment For Rent In Landbouwlaan 32-K1 5351LA Oss Berghem-Zuid Berghem

Prijs : € 1630

Berghem

Onbekend


Apartment For Rent In Landbouwlaan 32-K1 5351LA Oss Berghem-Zuid Berghem Ga naar Huurportaal-nl

voor € 1630

Bekijk alle informatie en beschikbaarheid bij Huurportaal-nl.

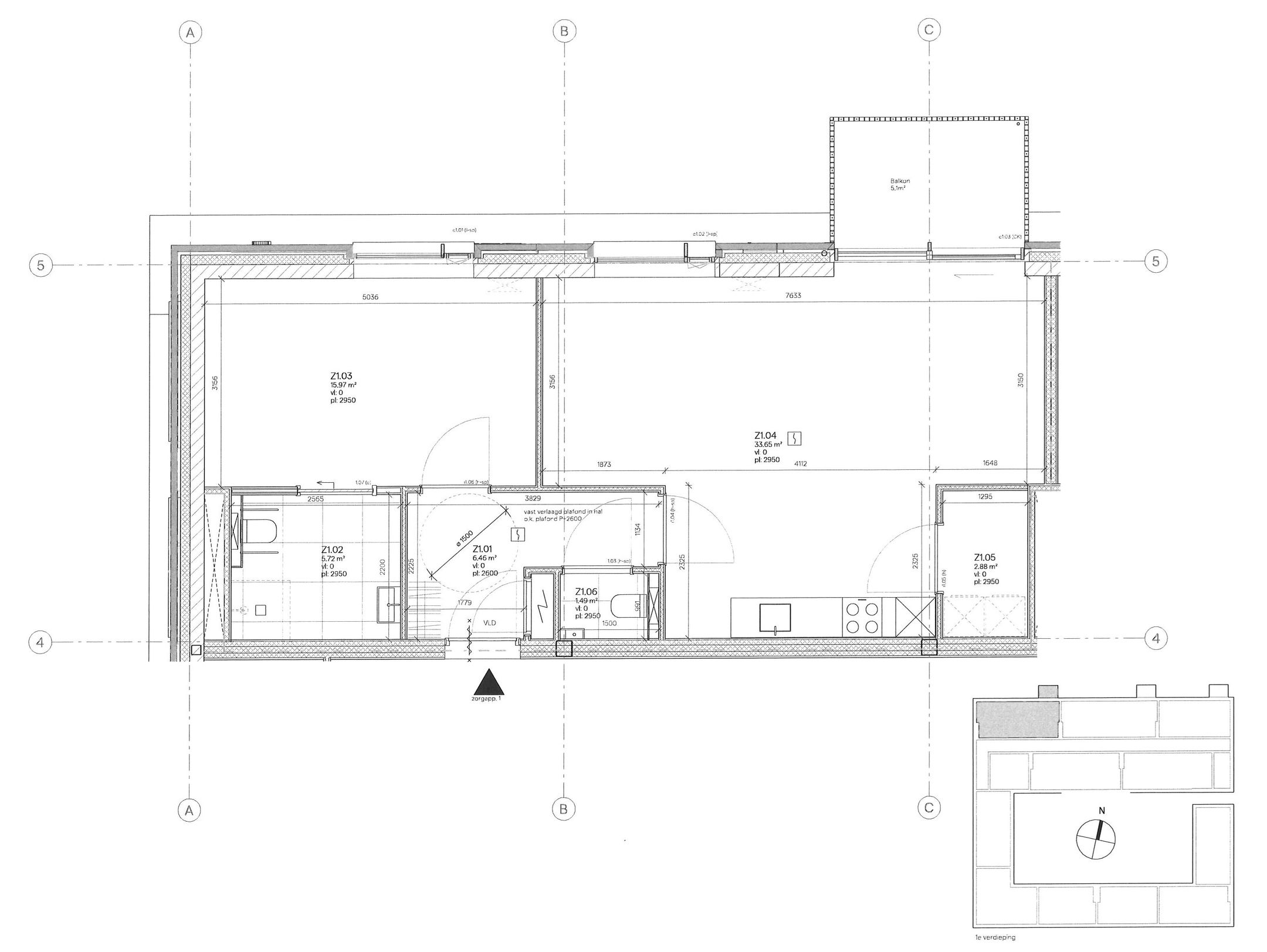
Dit moderne nieuwbouwappartement van 66 m² is gelegen op de eerste verdieping en biedt een comfortabele en toekomstgerichte woonomgeving. Het appartement beschikt over een balkon van 5,3 m², waar u he...