Apartment For Rent In Graaf Hendrik III Laan 169- 4819CG Breda Boeimeer Breda

Prijs : € 1950

Breda

Onbekend


Apartment For Rent In Graaf Hendrik III Laan 169- 4819CG Breda Boeimeer Breda Ga naar Huurportaal-nl

voor € 1950

Bekijk alle informatie en beschikbaarheid bij Huurportaal-nl.

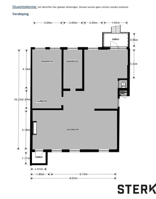
PER 1 FEBRUARI 2026 BESCHIKBAAR! Sfeervol 3-kamer appartement met eigen tuin, gelegen op het oosten. Het appartement is gesitueerd op de eerste woonlaag, heeft een balkon en privé-tuin en in het soute...