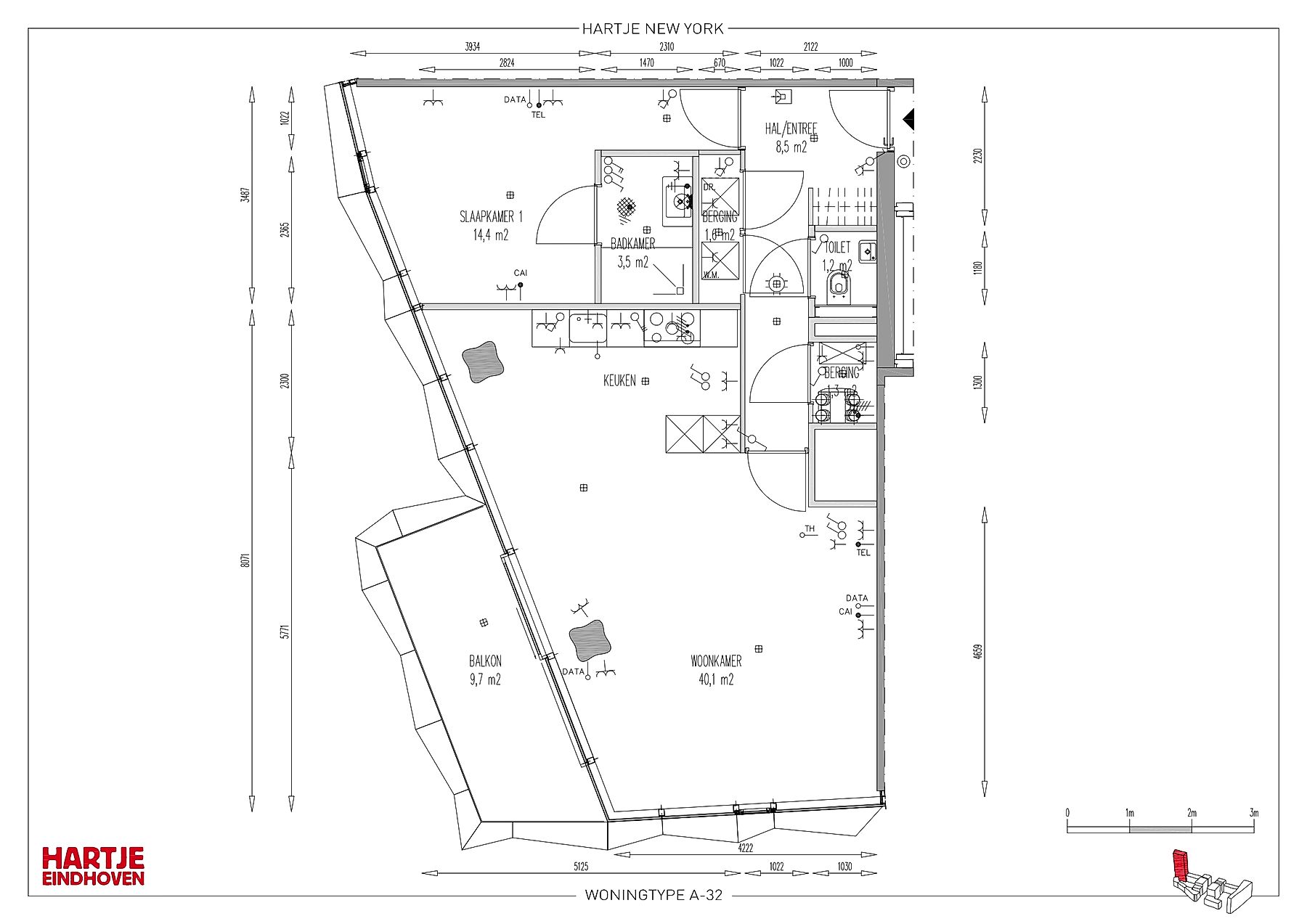
1 Bedroom Apartment For Rent In Gerard Philipslaan 277 5616 TT Eindhoven

Prijs : € 1200

Eindhoven

Onbekend


1 Bedroom Apartment For Rent In Gerard Philipslaan 277 5616 TT Eindhoven Ga naar Huurportaal-nl

voor € 1200

Bekijk alle informatie en beschikbaarheid bij Huurportaal-nl.

De gebruikte foto's zijn enkel ter indicatie en kunnen afwijken van de werkelijkheid, hieraan kunnen geen rechten worden ontleend.Hartje New York - Gerard Philipslaan 2772-kamer appartement gelegen in...