Apartment For Rent In Sarphatipark 80-1 1073EB Amsterdam Van Der Helstpleinbuurt Amsterdam

Prijs : € 2950

Amsterdam

Onbekend


Apartment For Rent In Sarphatipark 80-1 1073EB Amsterdam Van Der Helstpleinbuurt Amsterdam Ga naar Huurportaal-nl

voor € 2950

Bekijk alle informatie en beschikbaarheid bij Huurportaal-nl.

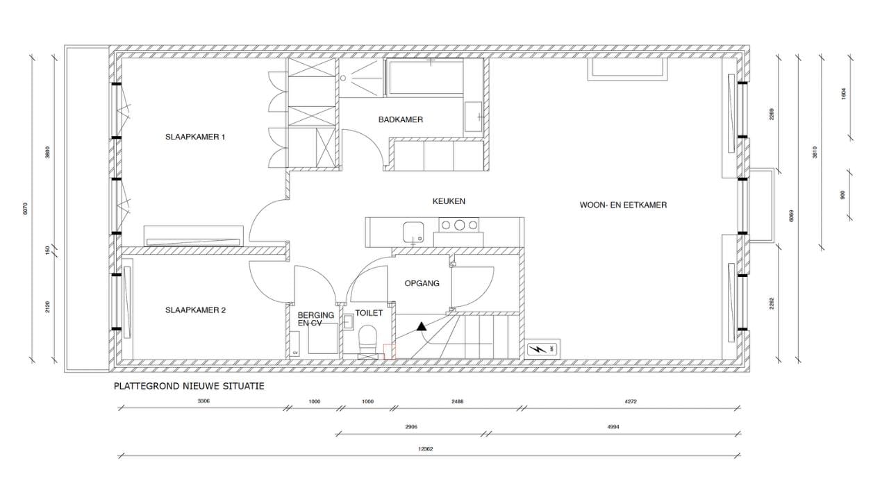
Hierbij bieden wij een schitterend gelegen 2-slaapkamerappartement aan, in een karakteristiek pand direct aan de ingang van het Sarphatipark. Een unieke locatie waar het stadsleven en groen perfect sa...