Nesserwei

Prijs : € 569

Ternaard


Nesserwei Ga naar Directwonen-nl

voor € 569

Bekijk alle informatie en beschikbaarheid bij Directwonen-nl.

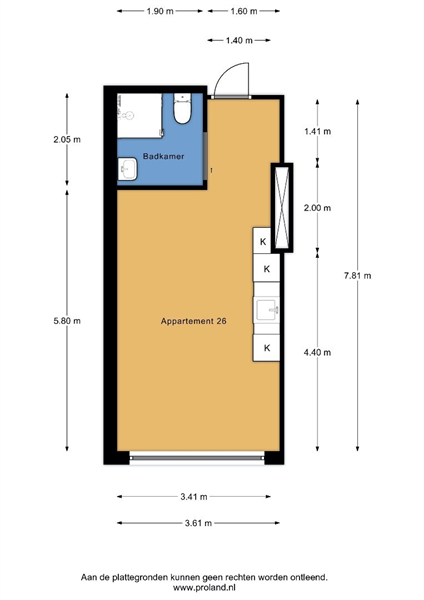
Deze studio bevindt zich in voormalig Woonzorgcentrum De Spiker in Ternaard.De studio's zijn onlangs gerenoveerd en worden gedeeltelijk gestoffeerd opgeleverd. Betaalbare en leuke huisvesting voor jon...