Clioplein

Prijs : € 1250

Den Haag

Kamer


Clioplein Ga naar Kamernet

voor € 1250

Bekijk alle informatie en beschikbaarheid bij Kamernet.

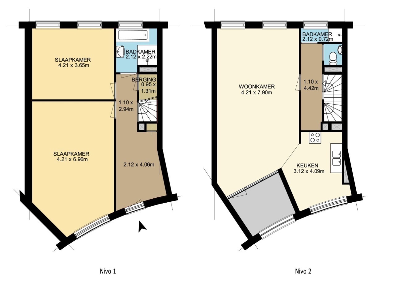
De afmeting van de kamer is 4.21 X 3.65M. (Bijna 16 vierkante meter!) De kamer is ongemeubileerd maar het appartement is gestoffeerd. Het ligt dicht bij de Albert Heijn, op 5 minuten lopen van het cen...