Appartement Te Huur Kerkstraat In Vollenhove Voor € 1.495

Prijs : € 1495

Vollenhove

Onbekend


Appartement Te Huur Kerkstraat In Vollenhove Voor € 1.495 Ga naar Huurportaal-nl

voor € 1495

Bekijk alle informatie en beschikbaarheid bij Huurportaal-nl.

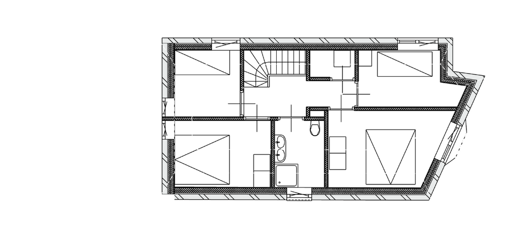
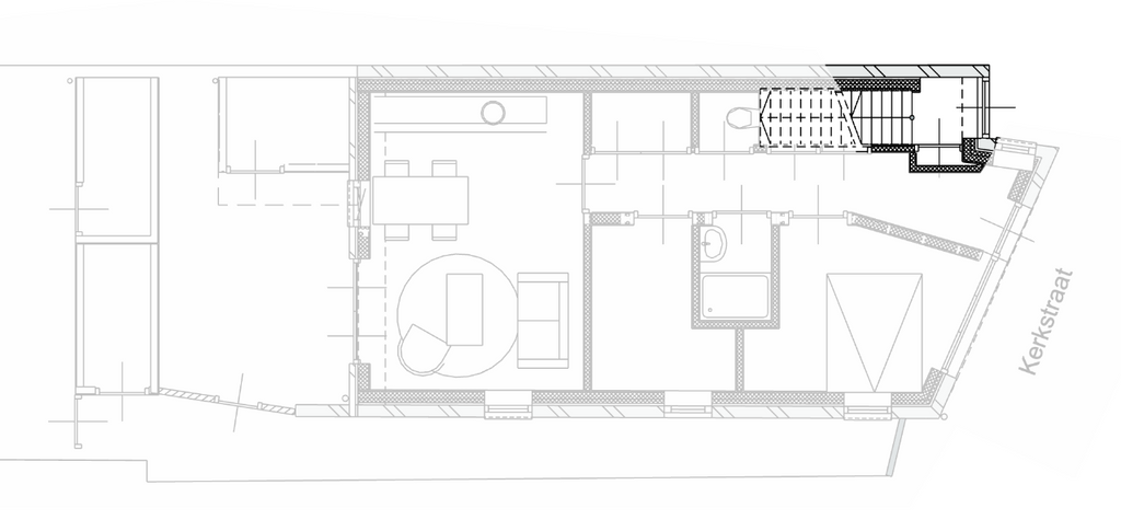
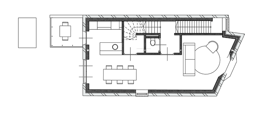
Beschrijving Ruime, prachtige en lichte bovenwoning in het sfeervolle oude stadscentrum van het voormalig Zuiderzee-stadje Vollenhove. De woning is volledig gerenoveerd. Geïsoleerd op nieuwbouwnive...