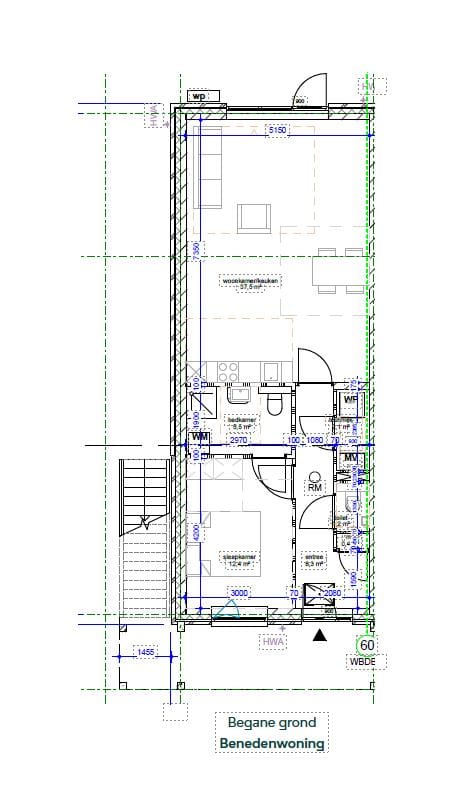
Apartment For Rent In Esschegors 35- 3291MC Hoeksche Waard Strijen Woonkern Strijen

Prijs : € 1228

Strijen

Onbekend


Apartment For Rent In Esschegors 35- 3291MC Hoeksche Waard Strijen Woonkern Strijen Ga naar Huurportaal-nl

voor € 1228

Bekijk alle informatie en beschikbaarheid bij Huurportaal-nl.

INSCHRIJVING GESLOTEN! Wil jij wonen waar je de rust en ruimte hebt van een dorp? Land van Essche is wonen en genieten in het groen en de rust van de Hoeksche Waard en tegelijkertijd sta je binnen een...