Apartment For Rent In Schipholweg 232- 2316XD Leiden Stationskwartier Leiden

Prijs : € 1025

Leiden

Onbekend


Apartment For Rent In Schipholweg 232- 2316XD Leiden Stationskwartier Leiden Ga naar Huurportaal-nl

voor € 1025

Bekijk alle informatie en beschikbaarheid bij Huurportaal-nl.

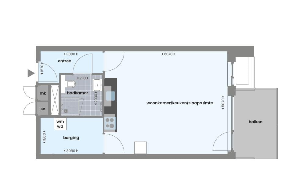
Gelegen aan de Schipholweg in Leiden ligt dit bijzondere appartement. Schipholweg 232 heeft een woonoppervlakte van 46 m2. De woning is gebouwd in 2022 en heeft een energielabel A+++. Vergeleken met d...