Apartment For Rent In Ottodreef 20- 8254BE Dronten Hanzekwartier Dronten

Prijs : € 1410

Dronten

Onbekend


Apartment For Rent In Ottodreef 20- 8254BE Dronten Hanzekwartier Dronten Ga naar Huurportaal-nl

voor € 1410

Bekijk alle informatie en beschikbaarheid bij Huurportaal-nl.

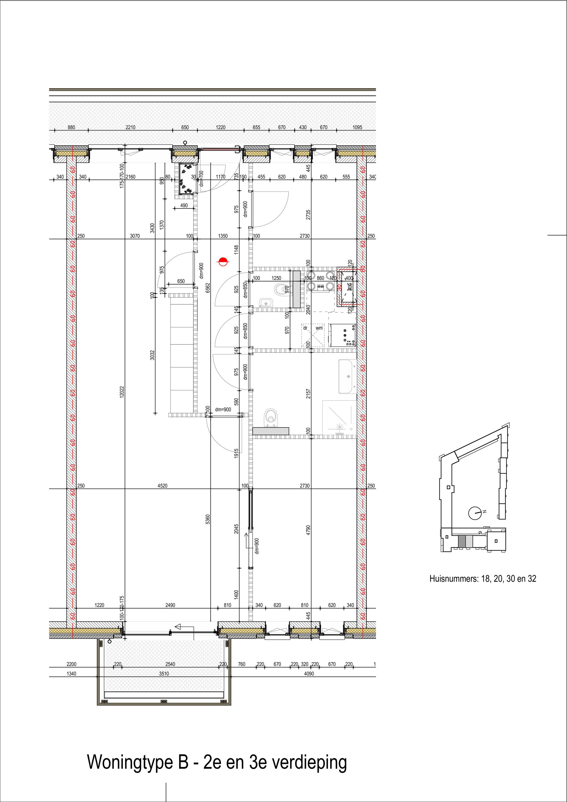
Ontdek het unieke appartementencomplex aan het Koning Willem Alexanderplein (KWA-plein), gelegen naast het station van Dronten. Hier is een bijzonder project gerealiseerd: 50 hoogwaardige 3- en 4-kame...