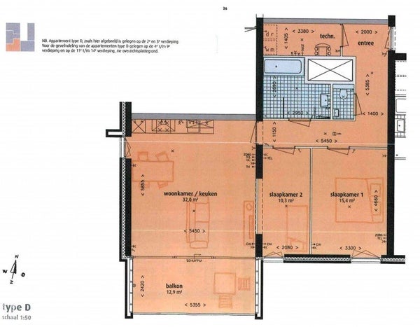
2 Bedrooms Apartment Surface Area: 88M2 Unfurnished

Prijs : € 1850

Breda

Onbekend


2 Bedrooms Apartment Surface Area: 88M2 Unfurnished Ga naar Huurportaal-nl

voor € 1850

Bekijk alle informatie en beschikbaarheid bij Huurportaal-nl.

This apartment on the 4th floor with fantastic views (type D) has a total living area of 88 m² with living room/kitchen approx 32m2 and has 2 bedrooms (10.3m2 and 15.4m2), This apartment has a parking...