House For Rent In Matara Bastion 8- 1991SM Velsen Bastionbuurt Velserbroek

Prijs : € 1952

Velserbroek

Onbekend


House For Rent In Matara Bastion 8- 1991SM Velsen Bastionbuurt Velserbroek Ga naar Huurportaal-nl

voor € 1952

Bekijk alle informatie en beschikbaarheid bij Huurportaal-nl.

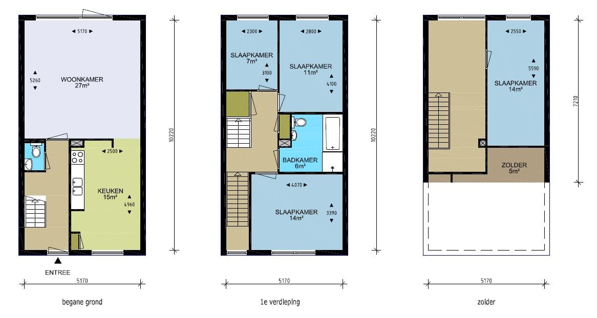
Ruime eengezinswoning van maar liefst 175 m2 in Velserbroek! Gemoedelijk wonen, in een rustige en groene omgeving. In het hart van de wijk, op vijf minuten fietsafstand, ligt winkelcentrum Velserbroek...