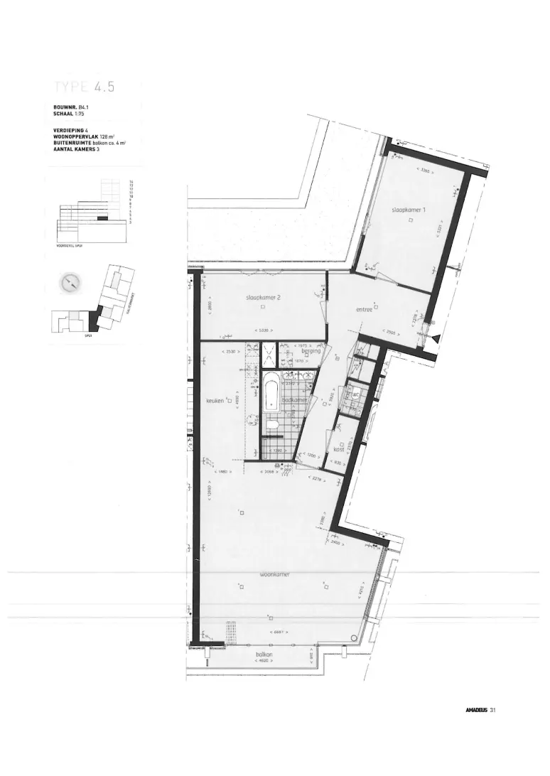
Apartment At Kalvermarkt Zuid-Holland Den Haag 2511 CB

Prijs : € 2290

The Hague

Onbekend


Apartment At Kalvermarkt Zuid-Holland Den Haag 2511 CB Ga naar Huurportaal-nl

voor € 2290

Bekijk alle informatie en beschikbaarheid bij Huurportaal-nl.

Kalvermarkt 12 g Wonen in het hartje van Den Haag! Luxe appartementen in het hart van Den Haag. Volop genieten van alles wat Den Haag te bieden heeft én comfortabel en rustig wonen. Amadeus biedt u ...