Kromstraat

Prijs : € 1190

Veldhoven


Kromstraat Ga naar Directwonen-nl

voor € 1190

Bekijk alle informatie en beschikbaarheid bij Directwonen-nl.

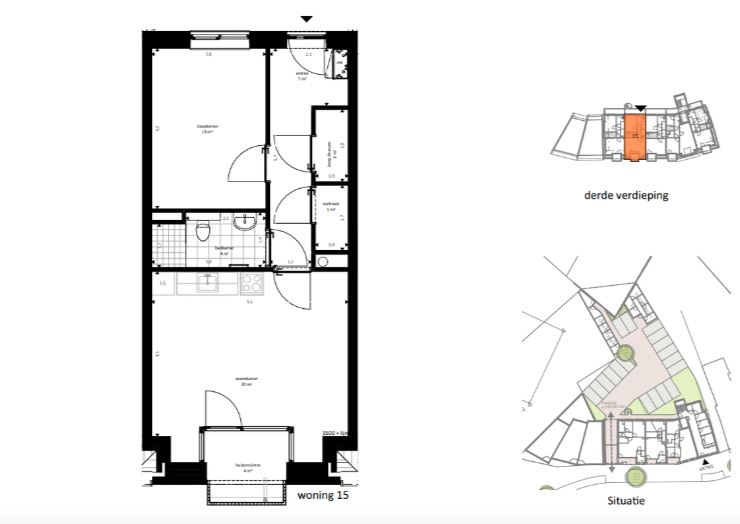
Dit complex aan de Kromstraat Veldhoven met in totaal 18 appartementen is opgeleverd in 2024 en is direct naast de ingang van de winkelstraat gesitueerd. De woningen beschikken over een eigen buitenru...